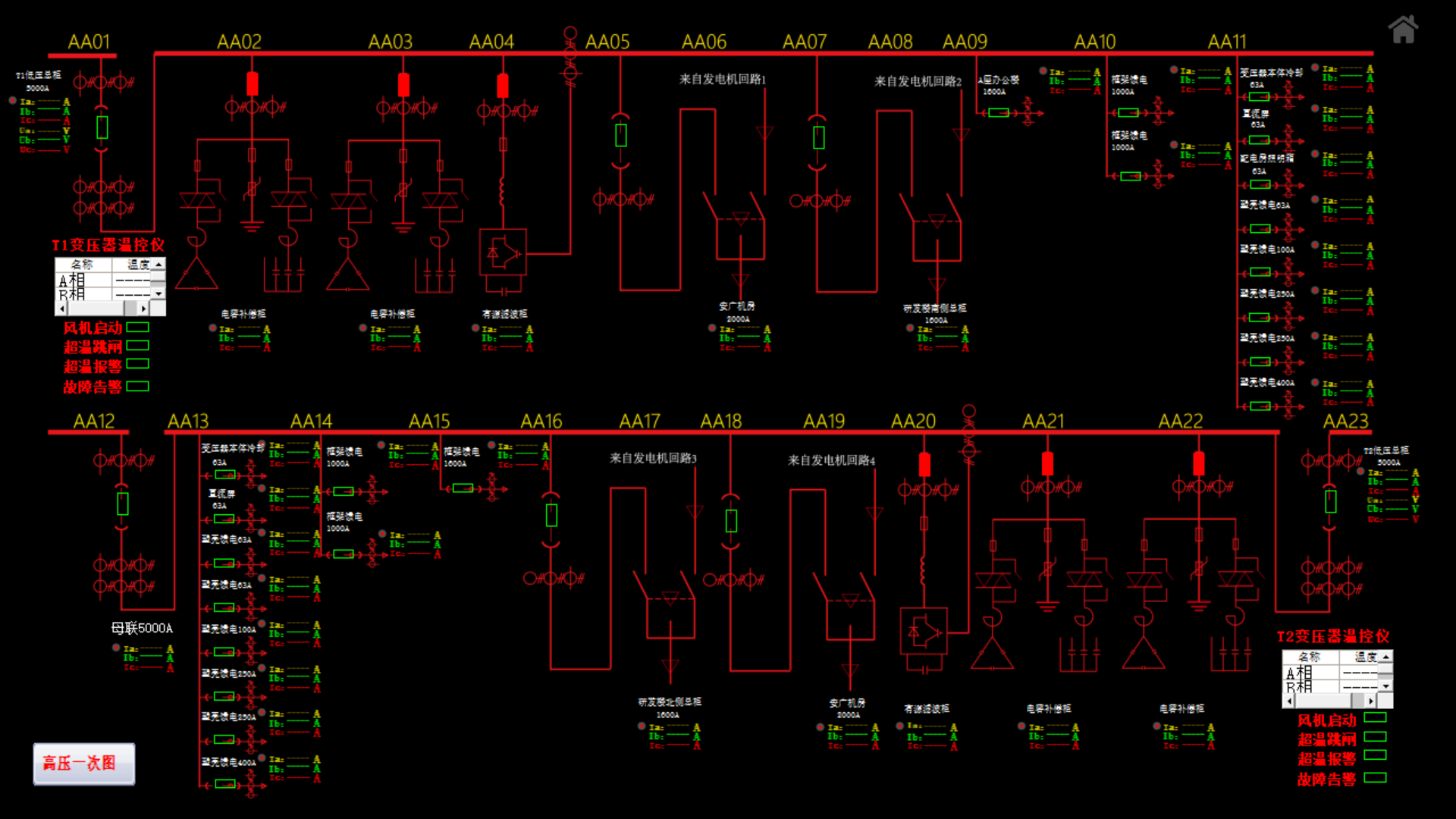
合肥电力监控系统
项目名称:合肥电力监控
项目地点:安徽
项目时间:2023年9月


项目范围:
1. 本项目安徽合肥项目提供1套电力监控系统
2. 我方提供含配电室内高压微机、低压仪表设备地址设置、通讯调试、PC上位机软件编程;
3.通讯线缆敷设由我方完成(开关柜或高压柜通过电缆沟到监控通讯箱通讯线、通讯柜至监控主机网线敷设);
4.配电柜内部仪表之间端子排上的串接线由我方完成;
5.待项目具备安装调试条件(开关柜、高压柜甲方能通接通电源,施工能协调停电;监控主机、通讯管理机能够接通市电);乙方按照甲方要求委派工程师现场通讯调试、软件调试、设备安装。


随着技术的不断进步和发展,电力监控系统未来将朝着以下几个方向发展:
智能化:随着人工智能、机器学习等技术的发展,电力监控系统将越来越智能化,
能够自动对电力系统进行故障诊断、预测和维护,进一步提高电力系统的稳定性和可靠性。
集成化:未来的电力监控系统将更加集成化,能够将多个功能模块集成在一起,
实现多参数、多设备的综合监控和管理,提高工作效率。
网格化:随着物联网技术的发展,电力监控系统将实现网格化,
各个设备之间可以通过物联网进行实时数据交流和协同工作,实现更加精细化的管理。
可视化:未来电力监控系统将更加注重可视化技术的应用,
通过图形化界面展示数据,使得用户更加直观地了解电力系统的运行状态,便于管理和维护。
